Amaris Zorggroep en Habion zetten zich in voor het project ‘locatieontwikkeling Amerhorst’. Dit om voor zelfstandig wonende ouderen een veilig en comfortabel thuis te bieden. Maar ook voor ouderen met een zwaardere zorgvraag. Om dit te realiseren zijn er plannen voor nieuwbouw van de Amerhorst.
Grote behoefte aan ouderenhuisvesting, ook in Amersfoort
Het is belangrijk dat ouderen zo lang mogelijk zelfstandig kunnen wonen met goede kwaliteit van leven. De vraag naar comfortabele zelfstandige (ouderen)woningen, met en zonder zorgvraag, stijgt. Er is een groot tekort aan woningen, de wachtlijsten zijn lang. Er moet dus iets gebeuren om aan de toenemende woon- en zorgvraag te voldoen. Ook in Amersfoort.
Lees hier de visie van Habion en Amaris.
Nieuwbouwplan met twee gebouwen
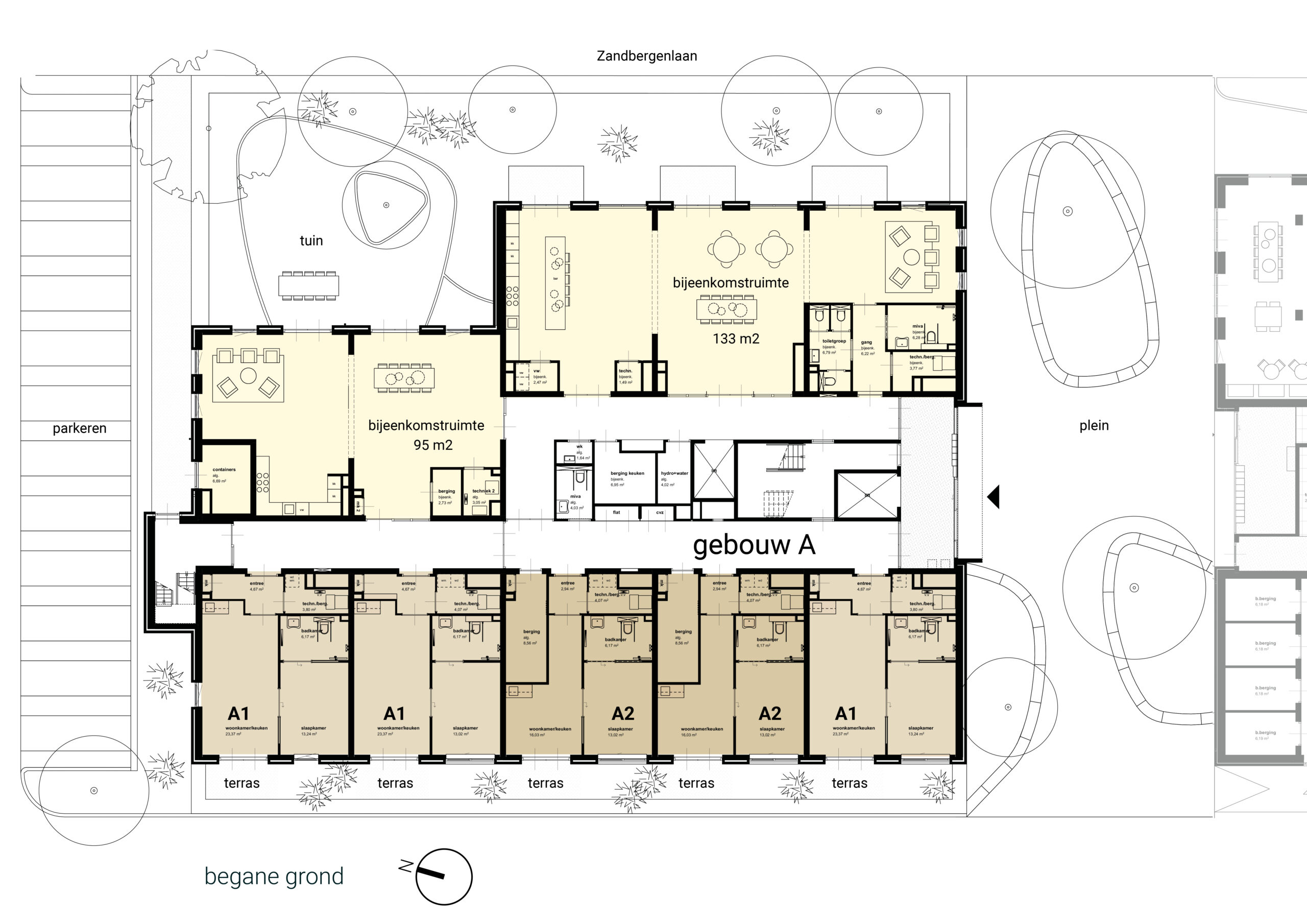
Gebouw A heeft 40 zorgappartementen met bijbehorende ontmoetingsruimten. De appartementen zijn bedoeld voor ouderen met een zware zorgindicatie, vooral psychogeriatrie. Gebouw B heeft 36 vrije sector appartementen voor ouderen. Samen met De Amerrank biedt dit voor alle inkomensgroepen huisvesting voor ouderen die geschikt zijn om nu of in de toekomst zorg aan huis te ontvangen.
Voor de bewoners en omwonenden komt er een gemeenschappelijke ontmoetingsruimte. De nieuwe bebouwing wordt zorgvuldig ingepast in zijn omgeving en heeft een verbindende rol met de aangrenzende wijk en met het in 2020 volledig gerenoveerde Amerrank.
Vergunningen en bestemmingsplanwijziging
De Raad van de gemeente Amersfoort heeft op 10 oktober 2023 ingestemd met het uitwerkingsvoorstel. In maart 2024 ging De Raad akkoord met de ontwerpverklaring voor het verstrekken van een omgevingsvergunning. Mei 2025 werd de omgevingsvergunning verleend en gaat het project daadwerkelijk starten. Lees er hier meer over.
Kaderstellende notitie
Uitwerkingsvoorstel
Ontwerpverklaring omgevingsvergunning(agendapunt 11)
Officiële bekendmaking ontwerpbesluit ter visie
Q2 2026 – Start bouw
Q2 2028 – Oplevering
Let op: aan deze planning kunnen geen rechten worden ontleend. De planning is afhankelijk van besluitvorming en te doorlopen procedures.
! Let op: 8 april vervalt
(verschuift naar 17 juni)
17 juni om 19:30 uur
(locatie en meer info volgt nog)
30 september om 19:30
(locatie en meer info volgt nog)
Nieuwsbrief maart 2026
Nieuwsbrief december 2025
Uitnodiging Gangmaker 28 mei 2025
Nieuwsbrief april 2025
Uitnodiging Gangmaker 5 februari 2025
Verslag Gangmaker juni + sept / uitnodiging 30 okt 2024
Uitnodiging 11 september 2024
Nieuwsbrief april 2024
Verslag Gangmaker 1 november 2023
Verslag Gangmaker 6 september 2023
Uitnodiging Gangmaker 6 september 2023
Verslag Gangmaker 12 juli 2023
Uitnodiging Gangmaker 12 juli 2023
Verslag Gangmaker 10 mei 2023
Nieuwsbrief april 2023
Meer nieuwsbrieven en verslagen
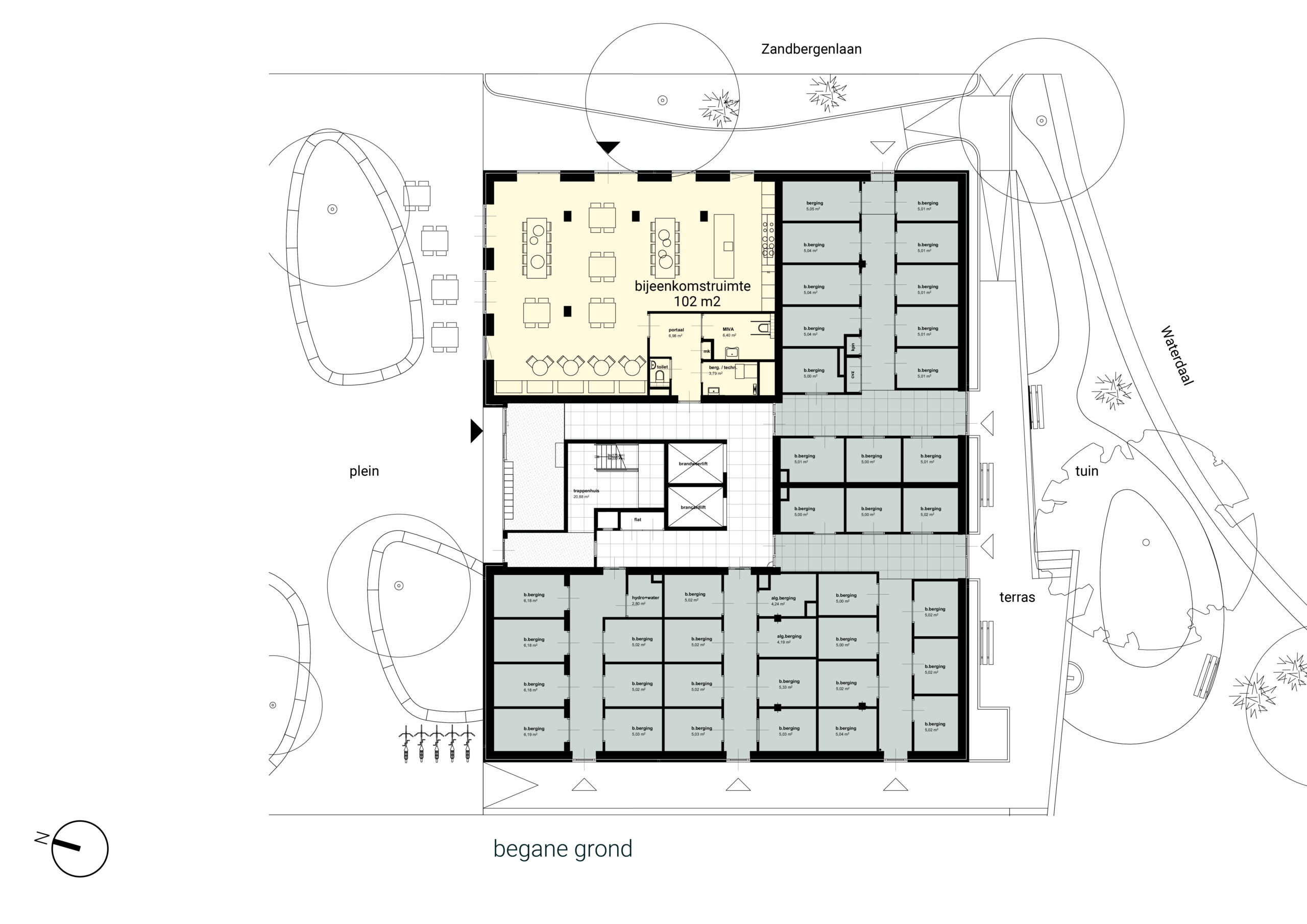
De plattegronden van de appartementen én de verdiepingen van gebouw A en gebouw B zijn HIER (IN PDF) gezamenlijk te vinden. Aan deze plattegronden kunnen geen rechten worden ontleend. Daarnaast is elk type appartement én verdieping apart per gebouw onder in de website als losse afbeelding terug te vinden.
Op dinsdagmiddag 9 september namen bijna 200 mensen – van toekomstige bewoners en buurtgenoten tot oud-medewerkers, collega’s en partners – feestelijk afscheid van de oude Amerhorst in Amersfoort (foto). De bijeenkomst markeerde het symbolische startschot voor de nieuwbouw die zorggroep Amaris samen met Habion realiseert: een moderne woonplek voor ouderen, midden in de wijk.
De sfeer was warm en betrokken. Met interviews, muziek, borrels en een knallende confetti-aftrap werd niet alleen teruggeblikt op wat de Amerhorst heeft betekend, maar vooral vooruitgekeken naar wat komen gaat. De aanwezigheid van buurtbewoners, bestuurders en de wethouder onderstreepte hoezeer dit project leeft in de wijk – een prachtig voorbeeld van verbinding en samenwerking!
Op woensdagmiddag 28 januari kwam een grote groep toekomstige bewoners, buurtgenoten en alle zakelijke betrokken partners (Amaris, Habion, gemeente Amersfoort en Slokker Bouwgroep) bij elkaar om letterlijk een hap uit het gebouw te nemen: er werd gesloopt! De bijeenkomst vond plaats in een verwarmde tent vol lekkernij zoals warme soepen. Er was volop ruimte om met elkaar in gesprek te gaan en het tekenmoment bracht een groot applaus met zich mee. Van de gezellige middag is een leuke video gemaakt. Bekijk de video hier en lees meer over het Sloopfeestje De Amerhorst.
Doet u mee? Op onze Gangmakersbijeenkomsten en via nieuwsbrieven houden we u op de hoogte. Schrijf u hier in!
